
About
Co-author with Bach Mühle Fuchs
Type
Invited competition
Team
Location
Saint-Prex, Switzerland
Year
2018
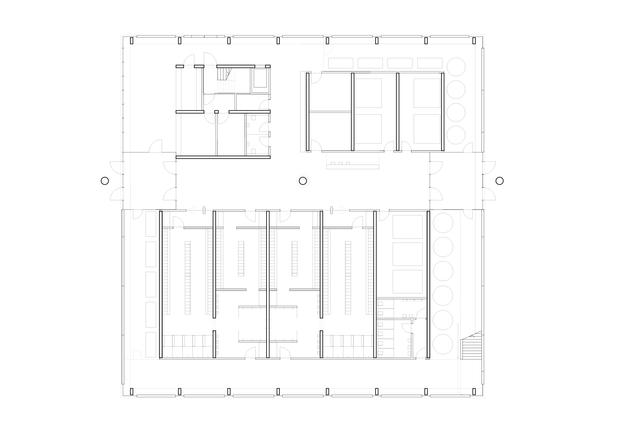
The new swimming pool for the town of Saint-Prex lies in the periphery of the urban settlement adjacent to an existing school ground. The project relates with its volume to the conglomerate of large-scale, public buildings. The footprint of the project is minimised to keep the centrally located space open for community and school activities.
A wide corridor connects the main street with the existing sports hall, creating an internal street with punctual visual connections to the swimming area on the ground floor. This space serves as the entrance hall for the pool, wherefrom changing rooms, a restaurant and all serving functions are accessed. The two basins are on the 1st floor. They form a folded concrete plate that differentiates the ground floor in its height and function. The loads are transferred through a cross-wall construction system to the ground. A curtain wall facade and a wooden roof enwrap the whole space.
Two superposed systems of structural frames are independently conceived and are supporting the facade and the roof. Their directions are derived from the movements in the building and the relation of the facades to their urban context. Rhythmically placed wooden frames on the long sides of the pools create vertical divisions relating to the repetitive movements of the swimmer. One exposed concrete frame lies above perpendicularly and supports the wooden structure in an economical manner. This frame reinforces the direction of the internal street and marks the entrances. Transparent glass panels follow the different structural systems and highlight the swimmers horizon, creating an alternating pattern with translucent infills.


About




